В данной статье мы рассмотрим консрукцию гончарного круга с ножным приводом, который был разработан известным гончаром из Англии Бернардом Личем (Bernard Howell Leach). Производство гончарных кругов этой конструкции было начато в 1962 году. Согласно опросам и мнений. данныя конструкция гончарного круга, была признана самой совершенной из-за эргономики рабочего места и крепкой, надежной станины.
Конструкция гончарного круга позволяет гончар сидеть на слегка наклоненном сидении, он толкает ногой педаль, которая приводит в движение маховик. Педаль маховика регулируется, поэтому этот гончарный круг прекрасно подойдет как взрослым так и детям.
Устройство и детали гончарного круга Лича


Рис. 1 Вид сбоку (схема + фотография)


Рис. 2. Вид сверху (Схема и фотография)
Материалы
Деревянные детали:
Для станины необходимо:
Ножки – 5шт. струганных брусков 75х75мм длиной 900мм
Перекладины – 7шт. струганных брусков 75х50мм длиной 900мм
Педаль – 1шт. струганный брусок 75х50мм длиной 1200мм
Стороны лотка
Доска — 1шт. 150х25мм длиной 3000мм
Основание лотка
12 мм склеенная смолой фанера
Сиденье
Доска — 1шт. 150х35мм длиной 450мм
Древесина для махового колеса
Может использоваться любая хорошая древесина как мягких, так и твердых пород.
Металлические детали:
Вал из стали Ø 25мм, длинной 800мм
Верхний диск гончарного круга Ø 250-350мм, толщиной 20мм
Диски для крепления маховика на вал – 2шт. Ø 250-350мм, толщиной 10-15мм
Кронштейн крепления педали
Шатун
Муфта для удержания шатуна на вале кривошипа
Крюк для цепи
Подшипники — 2шт. Ø 25мм
Цепь длиной в 760мм со звеном в 25мм
Вагонные болты — 14 шт. 150х10мм
Болты с квадратной головкой – 10шт. 80х10мм
Маленькая щеколда или крючок, для крепления лотка
Другие материалы:
Пластмассовая трубка для лотка Ø 65мм, длинной 100мм
Пластмассовые или резиновые дренажные шланги для лотка
Кожаный ремешок 200х50мм, для шатуна
Несколько винтов; лак и краска.
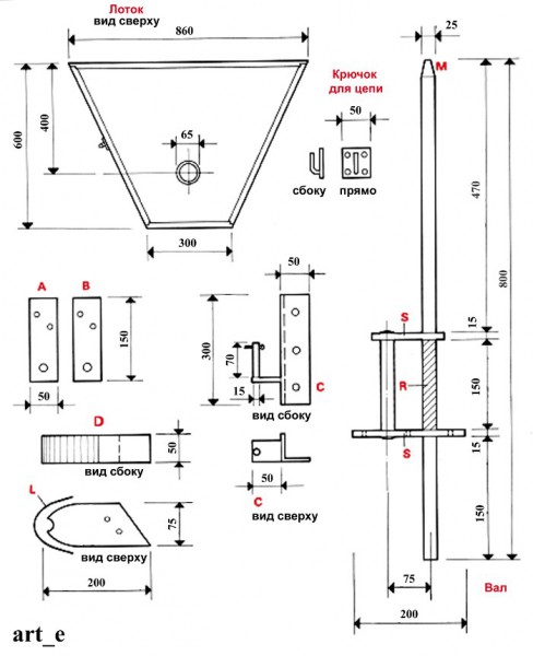
Чертежи гончарного круга:

Чертеж 1. Вид сбоку

Чертеж 2. Вид сверху

Чертеж 3. Детали

Чертеж 4. Маховое колесо. Колесо позволяет изменять вес, путем подсыпки необходимого количесва балласта.
Так же вы можете посмотреть видео о том, как мастер из Украины, Сергей Резников, собрал такой гончарный круг своими руками, по имеющимся чертежам: